febrero 17, 2026

Diseño estructural

Conoce nuestro servicio

DISEÑO
ESTRUCTURAL

Soluciones técnicas para sus proyectos

Diseño estructural3-VALO

En VALO entendemos el diseño estructural como la base que garantiza estabilidad, seguridad y permanencia en cada proyecto. Más que cálculos, desarrollamos soluciones técnicas que permiten que la arquitectura se materialice con solidez y coherencia constructiva.

Analizamos cargas, condiciones del terreno y normativa vigente para definir sistemas estructurales eficientes y optimizados. Diseñamos estructuras para viviendas, edificaciones comerciales e institucionales, integrando memorias de cálculo y planimetría precisa que respaldan una ejecución confiable en obra, además del cumplimiento de la Normatividad vigente (NSR-10)

“Diseñamos la estructura que sostiene tus ideas.”

¿Cómo el diseño estructural garantiza la solidez de una obra?

El diseño estructural define mucho más que la resistencia de una edificación. Es el sistema que permite que cargas, materiales y geometría trabajen de manera coordinada para ofrecer estabilidad y seguridad a largo plazo. Cuando la estructura está bien calculada, el proyecto se ejecuta con precisión y confianza.

En VALO Arquitectura desarrollamos y supervisamos estructuras desde la experiencia real de obra, como en este proyecto de estructura metálica para vivienda en Chía. Integramos criterio técnico, normativa vigente y eficiencia constructiva para lograr soluciones sólidas, optimizadas y preparadas para perdurar en el tiempo.

Experiencias en diseño estructural desarrolladas por VALO Arquitectura

Estos proyectos reflejan nuestra experiencia en diseño estructural aplicado a distintas escalas y sistemas constructivos. Cada estructura ha sido concebida a partir de un análisis técnico riguroso, integrando cálculo, normativa y eficiencia material para garantizar estabilidad, seguridad y viabilidad en obra. Diseñamos soluciones que permiten que la arquitectura se sostenga con coherencia, precisión y respaldo técnico real.

¿Cuáles son los beneficios de realizar el diseño estructural de tu proyecto con VALO?

Desarrollamos proyectos de diseño estructural seguros, optimizados y técnicamente viables. En VALO Arquitectura integramos cálculo, normativa y experiencia constructiva, lo que nos permite diseñar estructuras bien concebidas desde la etapa conceptual hasta su ejecución en obra.

Seguridad y estabilidad garantizadas

Cada proyecto estructural parte de un análisis detallado de cargas, materiales y condiciones del terreno. No se trata solo de dimensionar elementos, sino de asegurar que la edificación responda correctamente ante esfuerzos, uso y paso del tiempo, con respaldo técnico y normativo.

Diseño estructural viable para su ejecución

Nuestros proyectos se desarrollan con enfoque técnico desde el inicio. Esto permite anticipar sistemas constructivos, uniones, procesos de montaje y detalles estructurales, asegurando que el diseño sea eficiente, ejecutable y coherente con la realidad de obra.

Modelado y análisis estructural preciso

Utilizamos herramientas de cálculo y modelado para simular el comportamiento estructural antes de construir. Esto permite optimizar materiales, evaluar alternativas y reducir riesgos en obra, ofreciendo mayor claridad técnica y control en el proceso constructivo.

Experiencia en obra y materialización

Nuestra experiencia en ejecución nos permite diseñar estructuras que no solo cumplen en planos, sino que funcionan correctamente en campo. Esto se traduce en mejor coordinación técnica, control de costos y resultados sólidos alineados con el proyecto arquitectónico.

En VALO Arquitectura desarrollamos proyectos de diseño estructural con criterio técnico y visión integral de la arquitectura. Cada solución se define a partir del análisis de cargas, normativa y condiciones del terreno, garantizando estabilidad, seguridad y viabilidad constructiva. Nuestro acompañamiento permite que la estructura no solo cumpla en cálculo, sino que se ejecute correctamente en obra, optimizando materiales, tiempos y recursos para lograr edificaciones sólidas, coherentes y preparadas para perdurar.

0
Años de experiencia
0
M2 Proyectos desarrollados

VALO Arquitectura responde a las preguntas más frecuentes sobre el diseño estructural:

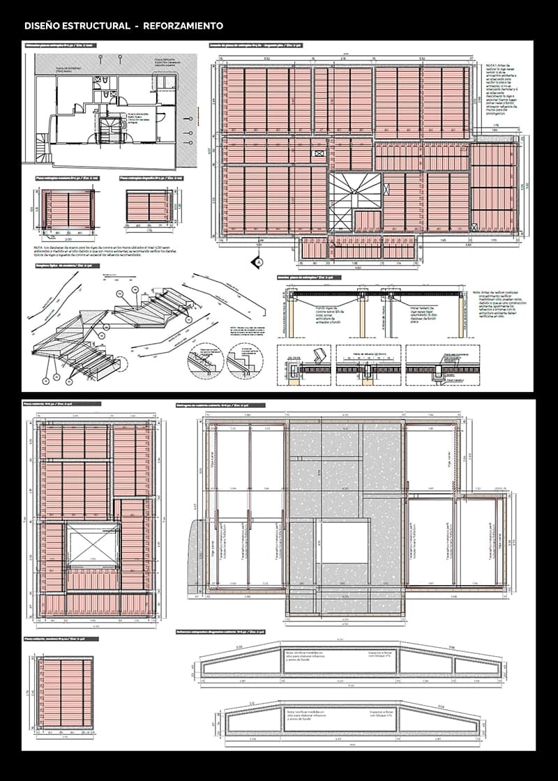
El servicio de diseño estructural incluye el análisis de cargas y solicitaciones, estudio de condiciones del terreno, definición del sistema estructural (concreto, metálico u otros), desarrollo de cálculos estructurales y elaboración de planos técnicos para construcción. Cada etapa se estructura para garantizar seguridad, cumplimiento normativo y viabilidad constructiva.

El tiempo depende del tipo y escala del proyecto. Una vivienda unifamiliar puede desarrollarse en pocas semanas, mientras que edificaciones de mayor complejidad requieren análisis más detallados. Siempre establecemos un cronograma claro que permita avanzar con precisión y respaldo técnico.

Un diseño estructural bien calculado permite optimizar el uso de materiales, evitar sobredimensionamientos innecesarios y reducir ajustes durante la ejecución. Esto se traduce en mayor control técnico, menos imprevistos y una obra más eficiente en tiempos y recursos.

Sí. Utilizamos herramientas de modelado y análisis estructural para simular el comportamiento de la edificación antes de su construcción. Esto permite evaluar alternativas, anticipar posibles interferencias y garantizar que la solución estructural sea segura y eficiente.

VALO Arquitectura: Diseño estructural con respaldo técnico y experiencia real

“Desde el primer encuentro entendimos que el diseño estructural no era solo un requisito técnico, sino la base que garantizaría la seguridad de nuestra vivienda. VALO estructuró el proyecto con claridad, precisión y cumplimiento normativo.” Cliente particular – Proyecto residencial
“Necesitábamos una solución estructural eficiente y viable para ejecutar en tiempos ajustados. El equipo de VALO optimizó materiales y definió un sistema claro de construcción. El resultado fue una obra estable, bien coordinada y sin improvisaciones.” Cliente comercial – Proyecto de edificación
“El diseño estructural desarrollado por VALO integró cálculo, análisis y experiencia en obra. Cada detalle estaba pensado para ejecutarse correctamente. Su acompañamiento nos dio confianza y control durante todo el proceso constructivo.” Cliente corporativo

Servicios relacionados

es_COES

SOLICITUD DE COTIZACIÓN

"CLICK" BOTON VERDE PARA ENVIAR

Revisamos cada solicitud y te contactamos personalmente.